Your search results

Altbau-Liebhaber gesucht: Renovierungsbedürftiges Einfamilienhaus in Zell / Kaimt

€ 135.000
Maximinplatz 4,
56856 
add to favorites
217
Objectnummer: EH26577
Price: € 135.000
Woonoppervlak: 100 m2
Perceelgrootte: 320 m2
Rooms: 7
Bedrooms: 3
Bathrooms: 2

NEDERLANDS:
Op zoek naar een woning met een vleugje vintage charme? Te renoveren eengezinswoning te koop in Zell/Kaimt.

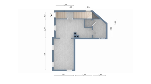
Deze degelijk gebouwde eengezinswoning in Kaimt biedt een uitstekende basis voor iedereen die op zoek is naar een woning met potentie en zijn of haar eigen ontwerpideeën wil realiseren. Gelegen op een perceel van circa 320 m², strekt de woning zich uit over drie verdiepingen en biedt circa 100 m² woonruimte.

In totaal zijn er 7 kamers beschikbaar, waaronder 3 slaapkamers, waardoor de woning flexibel kan worden gebruikt als gezinswoning, thuiskantoor of gastenverblijf. Een badkamer en een apart gastentoilet met douche zorgen voor een praktische indeling. Een eenvoudige keuken is aanwezig en kan worden gemoderniseerd of opnieuw ontworpen naar uw wensen.

De woning beschikt over een kelder, die waardevolle extra opberg- en werkruimte biedt, ideaal voor huishoudelijke taken, opslag en hobby’s. De kleine, aparte schuur is perfect te gebruiken als werkplaats of opslagruimte.

Parkeerplaatsen zijn schaars in het centrum van Kaimt; deze woning biedt twee ruime parkeerplaatsen direct tegenover de woning.

Helaas heeft de woning geen tuin, maar de binnenplaats kan worden omgetoverd tot een gezellige buitenruimte.

De woning is toe aan renovatie – een goede kans om deze geleidelijk aan te moderniseren en de waarde ervan op lange termijn te verhogen.

Een aantrekkelijk aanbod voor kopers die op zoek zijn naar een solide, eengezinswoning in Kaimt en bereid zijn om door middel van renovatie een unieke woning te creëren.

Oorspronkelijk bestond dit pand uit twee huizen; het bouwjaar is onbekend.

Daarom zijn er twee kelders, twee zolders en twee aparte dakconstructies. Het werd in de jaren 70 samengevoegd tot één woning, waarbij alle verdiepingen, behalve de zolders, met elkaar verbonden werden.

De daken waren aan de ene kant bedekt met natuursteen en aan de andere kant met kunstleisteen.

DEUTSCH:
Dieses massiv gebaute Einfamilienhaus in Kaimt bietet eine solide Basis für alle, die ein Zuhause mit Potenzial suchen und eigene Wohnideen verwirklichen möchten. Auf einem ca. 320 m² großen Grundstück gelegen, erstreckt sich die Immobilie über drei Etagen und verfügt über eine Wohnfläche von ca. 100 m².

Insgesamt stehen Ihnen 7 Zimmer zur Verfügung, darunter 3 Schlafzimmer, die eine flexible Nutzung als Familienwohnsitz, Homeoffice oder Gästezimmer ermöglichen. Ein Badezimmer sowie ein separates Gäste-WC mit Dusche sorgen für einen alltagstauglichen Grundriss. Eine einfache Küche ist vorhanden und kann je nach Anspruch modernisiert oder neu gestaltet werden.

Das Haus ist unterkellert und bietet dadurch wertvolle zusätzliche Nutz- und Abstellflächen, die sich ideal für Hauswirtschaft, Vorrat und Hobby eignen. Die kleine, separate Scheune kann perfekt als Werkstatt oder Lagerfläche genutzt werden.
Parkplätze sind im Zentrum von Kaimt eher selten; dies Objekt bietet jedoch 2 geräumige Stellplätze direkt gegenüber.
Über einen Garten verfügt das Objekt leider nicht, jedoch lässt sich aus dem Innenhof ein gemütlicher Rückzugsort im Freien kreieren.

Der Zustand der Immobilie macht einige Renovierungsarbeiten erforderlich – eine gute Gelegenheit, das Objekt Schritt für Schritt an heutige Wohnstandards anzupassen und langfristig aufzuwerten.

Ein interessantes Angebot für Käufer, die ein Einfamilienhaus in massiver Bauweise in Kaimt suchen und bereit sind, durch Renovierung ein individuelles Zuhause zu schaffen.

Object: EH26577

Ursprünglich bestand dieses Objekt aus 2 Häusern, das Baujahr ist leider unbekannt.
Somit gibt es hier also 2 Keller, 2 Speicher und 2 separate Dachstühle. Es wurde in den 70er Jahren zu einem Haus umgebaut und bis auf die Speicher, in jeder Etage miteinander verbunden.
Die Dächer wurden einmal mit Naturschiefer und einmal mit Kunstschiefer gedeckt.
Die Lage in Zell-Kaimt ist ausgesprochen ruhig. In wenigen Minuten ist man in der historischen Zeller Altstadt, wo zahlreiche urige Lädchen, Weinstuben und Restaurants zum Bummeln und Verweilen einladen. Zell ist einer der schönsten und beliebtesten Urlaubsorte im Mittelmoseltal und verfügt über eine hervorragende Infrastruktur mit Einkaufszentren, Ärzten, Schulen, Schwimmbad, zahlreichen Sportmöglichkeiten und touristischen Attraktionen. Die Lage ist ideal für Ausflüge zu den Sehenswürdigkeiten der Mittelmosel, sowie für Wander- und Fahrradtouren in die Umgebung. Die Nähe zum Flughafen Frankfurt-Hahn (20 km) und ein gut ausgebautes Straßennetz sorgen für problemlose Erreichbarkeit aus allen Teilen Europas.
Die Flächen- und Maßangaben sind Circa-Werte und beruhen auf den Angaben der Verkäufer. Die Preise verstehen sich zzgl. Käuferprovision von 3,57 % (inkl. MwSt.) vom beurkundeten Kaufpreis.
Fällig wird diese mit Abschluss des notariellen Kaufvertrages.
Energielabel
Energieverbruik: 428.84
Energie-certificaat geldig tot: 2036-02-26
Energie-efficiëntieklasse: H
Uitgavedatum Energiecertificaat: 2014
kWh/(m²·a)
Eindenergieverbruik
  • 0
  • 25
  • 50
  • 75
  • 100
  • 125
  • 150
  • 175
  • 200
  • 225
  • >250
kWh/(m²·a)
Primaire energievraag
Address: Maximinplatz 4
Zip: 56856
Country: Germany
Open In Google Maps
Objectnummer: EH26577
Price: € 135.000
Woonoppervlak: 100 m2
Perceelgrootte: 320 m2
Rooms: 7
Bedrooms: 3
Bathrooms: 2

Neem contact met ons op

  • Dit veld is verborgen bij het bekijken van het formulier
  • Dit veld is verborgen bij het bekijken van het formulier
  • Dit veld is verborgen bij het bekijken van het formulier
  • Dit veld is verborgen bij het bekijken van het formulier

Similar Listings

23
Monreal

Vielseitig nutzbares Anwesen im Herzen von M...

€ 579.000
Vielseitig nutzbares Anwesen im Herzen von Monreal (Denkmalgeschützt)
Vielseitig nutzbares Anwesen im Herzen von Monreal (Denkmalgeschützt)
54 374 m2 242 m2full info
35
Niederscheidweiler

Niederscheidweiler: Reizendes Bauernhaus mit...

€ 119.000
Niederscheidweiler: Charmante boerderij met bijgebouwen en schuur te koop
Niederscheidweiler: Charmante boerderij met bijgebouwen en schuur te koop
24
Neuwied / Oberbieber

Ihr neues Zuhause in Neuwied-Oberbieber: Ein...

€ 297.000
Uw nieuwe thuis in Neuwied-Oberbieber: Verhuis, ontspan en voel u thuis!
Uw nieuwe thuis in Neuwied-Oberbieber: Verhuis, ontspan en voel u thuis!
31 83 m2 266 m2full info

Compare Listings