NEDERLANDS:
Eengezinswoning te koop in Altlay, omgeven door groen, op een beschutte locatie.
Geniet van twee voordelen van deze gerenoveerde eengezinswoning:
Een panoramisch uitzicht over het beekdal van de Altlay aan de voorzijde en veel privacy aan de achterzijde.
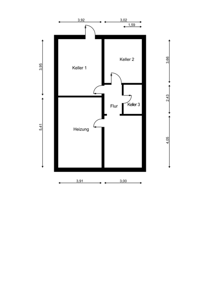
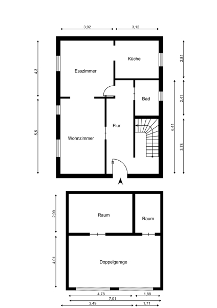
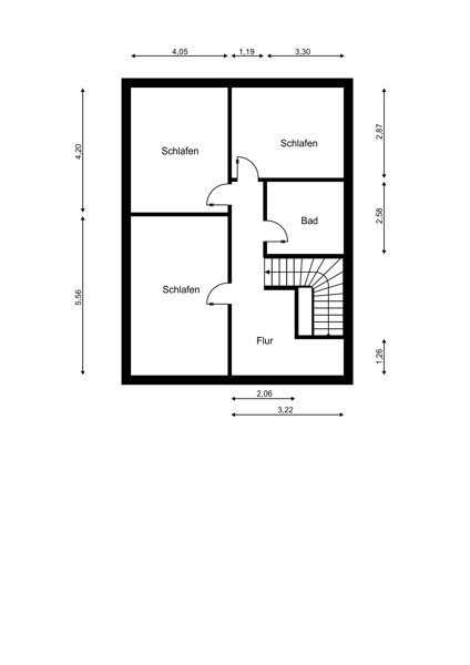
De woning wordt momenteel gebruikt voor vakantieverhuur, maar biedt met zijn 125 m² woonoppervlak ook voldoende ruimte voor een klein gezin met viervoeters.
Deze eengezinswoning dateert uit 1959 en is door de jaren heen goed onderhouden en gemoderniseerd.
– Dubbele beglazing uit 1982 en 1994
– Oliegestookte verwarming uit 2019
– Trapeziumvormig dak van de garage uit
– Badkamer op de bovenverdieping in 2024
– Nieuwe vloeren in de slaapkamers, woonkamer en eetkamer in 2024
– Wandbekleding in 2024
DEUTSCH:
Genießen Sie gleich zwei Vorzüge dieses renovierten Einfamilienhauses:
nach vorne den Weitblick Richtung Altlayer Bachtal und nach hinten jede Menge Privatsphäre.
Derzeit wird das Haus in der Ferienvermietung genutzt, aber auch für die kleine Familie, mit ihren 4-beinigen Freunden, bietet das Haus mit seinen 125 m² Wohnfläche ausreichend Platz.
Object: EH25572
- Doppelt verglaste Fenster aus 1982 und 1994
- Ölheizung aus 2019
- Trapezblecheindeckung auf Garage aus
- Badezimmer OG 2024
- neue Böden in Schlaf-,Wohn- undEsszimmer 2024
- Wandbehang in 2024
Fällig wird diese mit Abschluss des notariellen Kaufvertrages.
Immohu Immobilien Service für Mosel, Rhein, Eifel und Hunsrück in Zell (Rheinland-Pfalz). Wir vermarkten auch modulare Häuser (Tiny Häuser). Wir sind nicht nur für den Kauf von Immobilien für Sie da, sondern bieten auch bei gewünschtem Verkauf eine kostenfreie Objektbewertung.
Etwas Interessantes entdeckt? Fragen Sie uns nach einer Besichtigung oder einem Exposé.
