NEDERLANDS:
Eengezinswoning met apart appartement of wonen met meerdere generaties? De keuze is aan u in Lutzerath.
Te koop: een indrukwekkende meergezinswoning in het idyllische dorpje Lutzerath.
Het oorspronkelijke huis dateert uit 1900 en is in de jaren 70 en 80 uitgebreid.
Het biedt twee aparte wooneenheden:
– Apart appartement op de begane grond, ca. 90 m²
– Hoofd-appartement op de eerste verdieping, ca. 120 m²
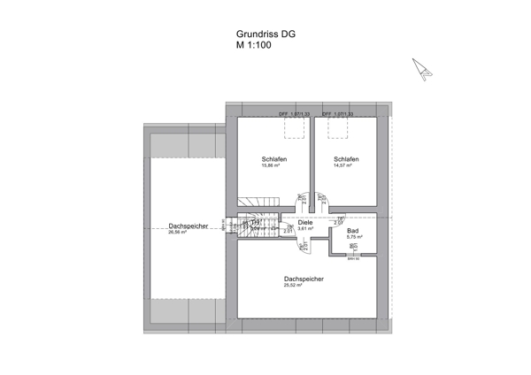
– Extra slaapkamers, badkamer (ca. 40 m²) en bergruimte op zolder: 25,5 m²
– Onafgewerkte mezzanine op de eerste verdieping: 26,50 m²
– Dubbele garage met aparte stookruimte
– Serre
– Gewelfde kelder
Deze solide gebouwde woning beslaat drie verdiepingen en biedt een royale woonoppervlakte van bijna 290 m², verdeeld over in totaal 12 kamers. Ideaal voor een groot gezin of als woning voor meerdere generaties. Het gebouw beschikt over vijf ruime slaapkamers en drie badkamers.
Momenteel is alleen het hoofd-appartement op de bovenverdieping bewoond; dit is reeds volledig gerenoveerd en grotendeels voorzien van driedubbele beglazing in kunststof kozijnen. De op maat gemaakte inbouwkeuken is bij de koopsom inbegrepen.
De centrale verwarming op gas is in 2012 geïnstalleerd. Voorheen werd de woning verwarmd met een houtkachel. De complete aansluiting hiervoor is nog aanwezig, maar de kachel zelf is niet meer in gebruik.
Er is een open haardaansluiting in de woonkamer op de bovenverdieping, maar deze is niet meer in gebruik.
Het appartement op de begane grond dient gerenoveerd te worden.
De woning beschikt tevens over een ruim perceel van 1.322 m², dat diverse inrichtings- en gebruiksmogelijkheden biedt.
br> br>DEUTSCH:
Zum Verkauf steht ein beeindruckendes Mehrfamilienhaus in der idyllischen Ortschaft Lutzerath.
Das ursprüngliche Haus stammt aus dem Jahr 1900 und in den 70er und 80er Jahren wurde das Objekt erweitert.
Es bietet 2 separate Wohneinheiten:
– Einliegerwohnung im EG ca.90 m²
– Hauptwohnung in OG ca. 120 m²
– zusätzliche Schlafzimmer, Badezimmer -Ca 40 m² und Speicherfläche im DG: 25,5 m²
– unausgebautes Zwischengeschoss im 1 OG: 26,50 m²
– Doppelgarage mit separatem Heizungsraum
– Wintergarten
– Gewölbekeller
Object: EH25564
Derzeit wird nur die Hauptwohnung im Obergeschoss bewohnt; diese ist auch bereits komplett renoviert und überwiegend mit 3-fach-verglasten Kunststofffenstern versehen. Die auf Maß angefertigte Einbauküche ist im Kaufpreis enthalten.
Die Gas-Zentral-Heizung wurde in 2012 eingebaut. Früher wurde das Objekt mit einer Festholz-Heizung beheizt. Das komplette Anschlusssystem ist hierfür noch vorhanden, die Heizung an sich ist jedoch nicht mehr abgenommen.
Im Wohnzimmer im Obergeschoss befindet sich noch ein Kaminanschluss, der jedoch nicht mehr genutzt wird.
Die Wohnung im Erdgeschoss ist renovierungsbedürftig.
Das Anwesen überzeugt weiterhin durch ein großes Grundstück von 1.322 m², welches vielfältige Gestaltungs- und Nutzungsmöglichkeiten offenbart.
Die Preise verstehen sich zzgl. Käuferprovision von 3,57 % (inkl. MwSt.) vom beurkundeten Kaufpreis.
Fällig wird diese mit Abschluss des notariellen Kaufvertrages.
